2 bed terraced for rent in Kingsteignton, Devon, TQ12 Let Agreed

£ 900/1 Month Rental
Badgers Close, Kingsteignton, Devon, TQ12 3TU, England
  (0/5) / 92
  • main 2
  • kitchen
  • lounge
  • conservatory
  • lounge 2
  • garden
  • batrhoom
  • bedroom
  • bedroom 2
  • kitchen 2
  • cons 2
  • EPC
  • 12 Badgers Close FP
1 Receptions
2 Beds
1 Baths
£ 900/1 Month Rental
Woods Homes Lettings – Teignbridge

Woods Homes Lettings – Teignbridge

Phone


View ratings and reviews for this agent:
No entries were found

Monthly Budget Calculator

Can you afford this property?

Description

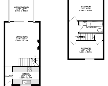
Available Now. A delightful, spacious two bedroom terraced house with conservatory, garden and parking, situated in a quiet tucked away location. EPC C Council Tax B Deposit Required £1038.00

A delightful, spacious two bedroom terraced house, entrance hall leading into the kitchen and a door into the lounge, the kitchen offers a range of wall and base units, a drawer stack, space for a washing machine and fridge or freezer, built in electric oven, ceramic hob and extractor hood above, good size lounge with feature fireplace and timber effect surround and patio doors leading into a bright and spacious conservatory with ceramic tiled floor, a radiator and french doors out to the rear garden. Upstairs, there are two double bedrooms, one having a built in cupboard and both decorated in neutral tones, family bathroom with bath and shower above. Outside is an enclosed low maintenance rear garden with a large, decked terrace, an area laid to artificial turf and a summer house, Allocating parking for one car. EPC C Council Tax B Deposit Required £1038. Available Now.

Rooms

Reception rooms
1
Bed
2
Bathrooms
1

DETAILS

Furnished :  Unfurnished
FEATURES:
  • Modern Terraced House
  • Fitted Kitchen
  • Spacious Lounge
  • Conservatory
  • Two Double Bedrooms
  • Family Bathroom
  • Enclosed Garden
  • Driveway Parking
  • Convenient Central Location
  • Available Now

 Related properties

Nearby properties
2 bed semi-detached for sale in Kingsteignton, Devon, TQ12
Buy £ 250,000/
Badgers Close, Kingsteignton, Kingsteignton, Devon, TQ12 3TU, England
2 bed terraced for sale in Kingsteignton, Devon, TQ12
Buy £ 225,000/
Badgers Close, Kingsteignton, Devon, TQ12 3TU, England
2 bed bungalow for sale in Kingsteignton, Devon, TQ12
Buy £ 295,000/
Broadway Avenue, Kingsteignton, Devon, TQ12 3EW, England

ADD COMMENT OR ASK A QUESTION

Your rating:

Submit