2 bed terraced for sale in Totnes, Devon, TQ9 SSTC

£ 295,000/
The Bakehouse Ticklemore Street, Totnes, Devon, TQ9 5EJ, England
  (0/5) / 116
  • Photo 13
  • Photo 10
  • Photo 3
  • Photo 11
  • Photo 4
  • Photo 9
  • Photo 7
  • Photo 6
  • Photo 12
  • Photo 8
  • Photo 1
  • Photo 2
  • Photo 5
  • Photo 14
  • EPC
  • EPC
  • Floorplan_Floorplan1
1 Receptions
2 Beds
1 Baths
£ 295,000/
Woods Homes Totness

Woods Homes Totness

Phone


View ratings and reviews for this agent:
No entries were found

Monthly Budget Calculator

Can you afford this property?

Description

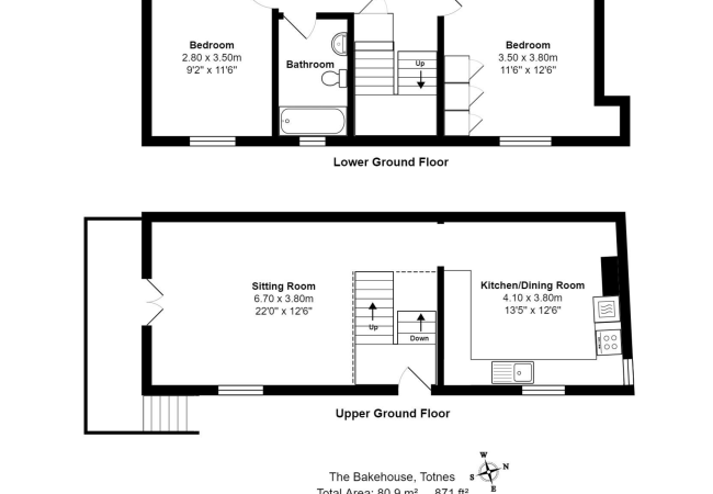
A former bakery converted in 2007 situated within easy reach of the town centre and amenities. The accommodation is arranged over two floors and comprises lounge/dining room, kitchen breakfast room, two double bedrooms and bathroom. There is a small south facing decked terrace and an off road parking space. EPC rating: E

A door at the front of the property opens into the entrance hall where stairs rise to the lounge/dining room where there is wooden flooring, two radiators and uPVC double glazed windows and French doors opening to the decked South facing terrace. An archway opens to the kitchen/dining room where there is a range of wall and base level units and drawers beneath roll edge work surfaces with tiled splash backs. There is an inset stainless steel sink and drainer, integrated double electric oven and gas hob with stainless steel chimney style extractor over. There is space and plumbing for washing machine and dishwasher, two uPVC double glazed windows, wall mounted gas fired combination boiler and ceramic tiled flooring.
Further stairs from the entrance hall descend to the ground floor hall where there are doors to the two double bedrooms and the family bathroom. Bedroom one has a uPVC double glazed window, built in wardrobes, shelving in alcove and radiator. Bedroom two has a uPVC double glazed window and radiator. The bathroom is fully tiled and fitted with white suite comprising panelled bath with electric shower over and glazed shower screen, pedestal wash hand basin and low level WC. There is a radiator, extractor fan, heated towel rail and obscured double glazed window.
Outside of the property and access from the lounge and steps to the side of the property is a raised decked terrace, facing south, with space for small table, chairs and pots.
The Bakehouse is freehold and connected to all mains services with gas fired central heating.
Council Tax band: B - South Hams District Council.

Rooms

Reception rooms
1
Bed
2
Bathrooms
1

DETAILS

UPRN :  10009313238
FEATURES:
  • A charming former bakery situated in the centre of Totnes within easy reach of the town and amenities
  • Accommodation arranged over two floors
  • Well fitted kitchen/breakfast room
  • Two double bedrooms
  • Family bathroom
  • South facing terrace
  • Off road parking
  • No onward chain

 Related properties

Nearby properties
2 bed cottage for sale in Totnes, Devon, TQ9
Buy £ 250,000/
Hope Cottage Ticklemore Street, Totnes, Devon, TQ9 5EJ, England
2 bed flat for rent in Totnes, Devon, TQ9
Rent Guide Price £225,000
The Plains, Totnes, Devon, TQ9 5DR, England
3 bed maisonette for sale in Totnes, Devon, TQ9
Buy Guide Price £450,000
Fore Street, Totnes, Devon, TQ9 5DX, England

ADD COMMENT OR ASK A QUESTION

Your rating:

Submit