6 bed detached house for sale in Newton Abbot, Devon, TQ12 Available

£ 545,000/
Twickenham Road, Newton Abbot, Devon, TQ12 4JE, England
  (0/5) / 146
  • IMG_7933
  • IMG_7826
  • IMG_7802
  • IMG_7814
  • IMG_7821
  • IMG_7800
  • IMG_7831
  • IMG_7876
  • IMG_7833
  • IMG_7846
  • IMG_7854.JPG
  • IMG_7865
  • IMG_7899
  • IMG_7882
  • IMG_7861
  • dji_fly_20240723_143
  • IMG_7917
  • IMG_7909
  • IMG_7920
  • 3 Twickenham Road, N
1 Receptions
6 Beds
3 Baths
£ 545,000/
Woods Homes Sales (Teignbridge)

Woods Homes Sales (Teignbridge)

Phone


View ratings and reviews for this agent:
No entries were found

Monthly Budget Calculator

Can you afford this property?

Description

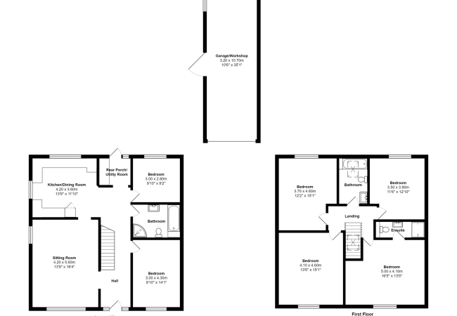
A stunning five/Six bedroom detached home, which has recently undergone substantial renovations to create spacious modern living over two levels. The property enjoys a tandem garage, off road driveway parking, along with front and rear gardens, situated in a popular location close to local amenities and being on a bus route.

This superb detached home is a credit to the current owners who have renovated and extended the property throughout to provide modern living accommodation with annexe potential. The property has been finished to a high standard and benefits from new UPVC anthracite windows, amble sockets, new smart boiler, spot lights, gas central heating, contemporary oak doors, new kitchens and contemporary bathrooms.

The property is accessed through a wide entrance hall, with stairs leading to the first floor, grey wood effect flooring, doors to principal rooms space under the stairs with a concealed wall mounted built in cupboard housing the fuse board. An opening at the end of the hall takes you through to the laundry room with space and plumbing for a wash machine and tumble dryer, work top, space for shoes and coats, and the wall mounted smart boiler is housed here. A doors leads out to the garden.

The modern high gloss kitchen enjoys a double aspect providing an abundance of natural light and is open to the entrance hall providing a feeling of space. The kitchen has a good range of grey high gloss soft closing wall and base level kitchen units providing ample storage, wine rack, contemporary vertical radiator, work surfaces with matching up stands, one and half bowl sink unit, space and plumbing for a dishwasher, space for a range style cooker, space for tall fridge freezer. The kitchen provides the perfect space for cooking and entertaining.

The focal point of the ground floor is the large lounge with views over Milber to the wooded area beyond, creating a peaceful and scenic atmosphere.

The ground floor boasts two bedrooms, one small double room over looking the rear garden, which could be re-purposed as a dining room should one wish and second bedroom is a good size double with a large window to front aspect.

The ground floor is completed with a stylish bathroom, adding to the convenience and luxury of the property, providing flexibility for guests or family members. The bathroom enjoys a panelled bath, large corner shower cubicle with water proof panelling, contemporary tiled splash backs, WC and wash hand basin with cupboard below.

Heading up to the first floor, you will find an impressive vaulted landing with a Velux window flooding the landing and stairs with natural light.

The principal bedroom is an impressive room with vaulted ceiling, feature oak timber beam, window to front aspect enjoying views across Milber to the wooded area beyond providing a private and tranquil space to relax. The en-suite shower room has a fitted shower cubicle with water proof panelling to walls, wall mounted wash hand basin and WC.

The first floor also features three additional double bedrooms, all spacious and well-lit with vaulted ceilings, along with a contemporary bathroom for added convenience. The first floor bathroom has a panelled bath, WC and wash hand basin with cupboard below.

Outside, to the front of the property there is small garden laid to lawn with mature shrubs and bushes. The driveway runs up the side of the property and provides ample off road parking, which in turn gives access to the tandem garage offering further space for vehicles, along with additional storage options. The garage has an electric roller door, power and light connected, courtesy door leading to rear garden, workshop space, window to side aspect and eaves storage space.

The rear garden enjoys a good size patio terrace ideal for sitting out, relaxing or al-fresco dining. Beyond the patio is a lawned garden with a stepping stone path leading through the garden with an, apple tree and established shrubs. To the rear of the garden, behind the garage, there is space for a shed. A path leads around the property to under house storage.

This stunning detached house offers annexe potential, making it ideal for those seeking a spacious and flexible living arrangement. The recent renovations and modern features add to the appeal of this home, creating a comfortable and stylish living space in a convenient location in Newton Abbot. Don't miss the opportunity to make this beautiful property your next home.

Rooms

Reception rooms
1
Bed
6
Bathrooms
3

DETAILS

UPRN :  100040335365
Tenure type :  Freehold
FEATURES:
  • A superb detached house providing spacious flexible living accommodation
  • Annexe potential
  • Wide entrance hall with separate Utility Room
  • Large lounge with views over Milber to the wood beyond
  • Modern high gloss kitchen
  • Contemporary Bathrooms on the Ground floor and First floor
  • Two ground floor Bedrooms
  • Vaulted Principal Bedroom with En-Suite
  • Three Further First Floor Bedrooms
  • Front and Rear Gardens

Important Information

Important Information

 Related properties

Nearby properties
2 bed terraced for sale in Newton Abbot, Devon, TQ12
Buy Guide Price £190,000
Foxhollows Shaldon Road, Newton Abbot, Devon, TQ12 4AN, England
3 bed bungalow for sale in Newton Abbot, Devon, TQ12
Buy £ 359,950/
Twickenham Road, Newton Abbot, Devon, TQ12 4JG, England
2 bed detached bungalow for sale in Newton Abbot, Devon, TQ12
Buy £ 335,000/
Heath Park, Newton Abbot, Devon, TQ12 4JQ, England

ADD COMMENT OR ASK A QUESTION

Your rating:

Submit